铜梁区南城街道铁石路*号(桃源居)
*栋*单元增设电梯公示
铜梁区南城街道铁石路*号(桃源居)相关业主、相关利害关系人:
近日,铜梁区南城街道铁石路*号(桃源居)*栋*单元龚*等20位业主向铜梁区南城街道办事处提出申请增设电梯,现将铜梁区南城街道铁石路*号(桃源居)*栋*单元增设电梯项目相关情况公示如下:
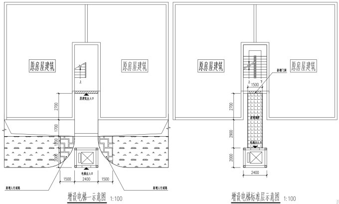
该项目名称为铜梁南城街道铁石路*号(桃源居)*栋*单元增设电梯项目,建设单位为重庆渝港电梯有限公司,设计单位为重庆大时代建筑设计有限公司,建设地点位于铜梁区南城街道铁石路*号(桃源居)*栋*单元(方案详见增设电梯示意图),属于重庆市铜梁区南城街道南门社区。
重庆市铜梁区南城街道办事处根据《重庆市既有住宅增设电梯管理办法》、《关于进一步推进既有住宅增设电梯的规划指导意见》规定,现将书面申请、增设电梯示意图、经核实并盖章后同意增设电梯的业主名单及书面同意意见等申请内容向相关业主和利害关系人进行公示,公开征询意见。公示期为:2025年6月10日——2025年6月16日。同时在铜梁区政府网同步进行公示,公示链接:https://www.cqstl.gov.cn/。
(一)公示期间,因增设电梯受到影响的利害关系人有反对意见的,业主可自行协商,解决增设电梯过程中的利益平衡、权益受损等事宜。业主协商不成的,可在公示期结束后5个工作日内即2025年6月23日前向南门社区居民委员会提出书面反对意见,并将书面意见、房产证(或购房合同)等证明涉及其利害关系的材料确认签字并邮寄或直接提交至南门社区居委会,注明身份(单位-名称、社会信用代码及法定代表人身份证明/个人姓名及身份证复印件)、联系电话和邮寄地址。逾期未提出的,视为同意申请事宜或自动放弃权利。
(二)经南门社区居委会确认调解仍未达成一致意见的,持异议的业主可向属地街道办事处申请搭建协商平台,采用召开协调会等方式进行调解。
(三)南门社区居委会和南城街道办事处出具相关调解情况记录。调解成功的,社区居委会、街道办事处应对申请人递交的增设电梯项目申请资料予以盖章确认。
(四)在调解过程中,可由南门社区居委会和南城街道办事处引导申请加装电梯的业主对因增设电梯而受到影响的利害关系人给予一定的补偿。
附件:1.书面申请;2.授权委托书;3.增设电梯示意图;4.业主书面同意意见;5.增设电梯费用分摊协议。
区规划主管部门联系人:练训豪; 联系电话:023-45693152;邮编:402560 地址:巴川街道河湾36号 。
协调矛盾纠纷单位:重庆市铜梁区南城街道南门社区居民委员会;联系电话:023-81608088。
增设电梯示意图:

重庆市铜梁区人民政府南城街道办事处 重庆市铜梁区南城街道南门社区居民委员会
2025年6月10日
